Quadrilocale in vendita

Miane, Via san vito
€ 110.000
Prezzo aggiornato
4 locali 4 locali
240 Mq 240 Mq
2 bagni 2 bagni

Quadrilocale in vendita

Miane, Via san vito

Descrizione annuncio

NOSTRA ESCLUSIVA DI VENDITA////

MIANE. Loc. Visnà.

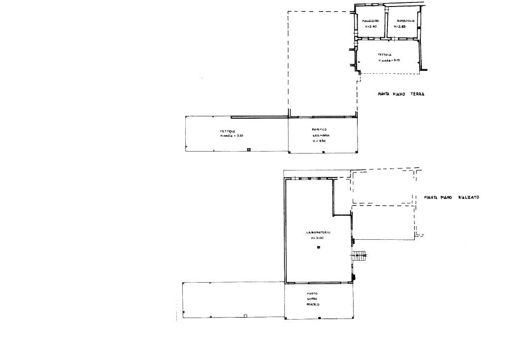
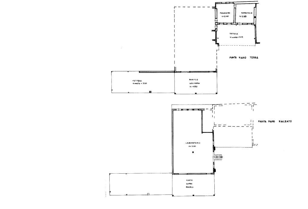
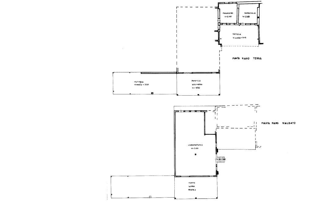
Situato sulla via principale del paese, proponiamo in vendita ampia abitazione di 240 mq con laboratorio al piano terra e unità abitativa al primo piano, composta da salone, grande cucina, ripostiglio, tre camere da letto, due bagni (uno con doccia e vasca, l' altro di servizio), e tre terrazze di cui una coperta da cui si accede a una stanza con caminetto.

L' immobile dispone inoltre di una porta di collegamento alla casa adiacente, utile come deposito o ampliamento spazi.

La proprietà comprende due terreni di 108 mq e 1316 mq, offrendo ampio spazio per giardino, orto o area relax all' aperto.

Per ulteriori informazioni contattateci in Agenzia e seguiteci anche su facebook, cliccando 'mi piace' sulla pagina Gruppo Tecnocasa Valdobbiadene.
Scaricate gratuitamente l'App. Tecnocasa sul vostro smartphone e sarete sempre aggiornati sulle nostre proposte di vendita.

Mostra tutto

Nelle vicinanze

Trasporto pubblico Trasporto pubblico
Trasporto pubblico
2,6 Km
Ricariche auto elettriche Ricariche auto elettriche
Ristorante Da Gigetto
180 m
Piazza Emigranti
3,0 Km
Scuole Scuole
Scuole Elementari
280 m
Scuole
290 m
Istituto Comprensivo "A. Fogazzaro"
2,5 Km
Farmacia Farmacia
Farmacia
2,6 Km
Supermercati Supermercati
Supermercato Rosa
240 m
Negozi Negozi
La Fenice
2,7 Km
Bar Bar
Bar
440 m
Osteria al Milani
2,7 Km
Ristoranti Ristoranti
Da Gigetto
190 m
Osteria Al Contadin
1,7 Km
Pizzeria Curva del Cristo
1,8 Km
Trattoria All'Edera
1,9 Km
Riva dei Tör
2,3 Km
Mostra tutto

Caratteristiche

Rif.:
61128597
Piano:
2 di 2 (Piano su più livelli)
Posti auto:
2
Terrazzi:
3
Camere da letto:
3
Arredamento:
Assente
Mostra tutto
Prezzo Prezzo
€ 110.000
Rata mutuo Rata mutuo
€ 518 / mese
Spese annue Spese annue
€ 0
Proponi il tuo prezzoProponi il tuo prezzo
Immobile valutato con T·Valuta

Classe Energetica

G
G
G
G
G
G
G
G
G
EP globale non rinnovabile:
490.97 kW h/m² anno
EP globale rinnovabile:
126.33 kW h/m² anno
EP invernale del fabbricato:
EP estiva del fabbricato:
Anno di costruzione:
1969
Riscaldamento:
Autonomo
Tipo impianto:
A radiatori
Tipo alimentazione:
Metano

Prezzo ridotto di €1 (9%%)

Ti interessa visionare l'immobile?

Fissa un appuntamento  Fissa un appuntamento

Richiedi informazioni

Clicca su Leggi per aprire l'informativa
* Questi campi sono obbligatori

Calcola il tuo mutuo

Semplice e senza impegno
Anticipo

( % )
Mutuo

( % )

pochi semplici passi

inserisci i tuoi dati
Questionario completato
Grazie per aver richiesto un appuntamento senza impegno con un nostro Consulente del Credito e Assicurativo.

Hai inserito correttamente tutti i dati necessari e a breve riceverai una e-mail con un link da convalidare per inviare i tuoi dati.
Affiliato
Studio Valdobbiadene Srl
Via Garibaldi, 36 31049 Valdobbiadene (TV)

Il nostro staff


  • Edoardo Maria Cunzo
    Responsabile

  • Vittorio Braguta
    Collaboratore

  • Andreanicole Bizzotto
    Affiliata

  • Nicola Pavan
    Affiliato

  • Maddalena Recchia
    Collaboratrice

  • Blerina Seli
    Coordinatrice

  • Veronica Zanandrea
    Responsabile
Via Garibaldi, 36 31049 Valdobbiadene (TV)
Zona: Valdobbiadene-Vidor-Pederobba
Mostra su mappa
Affiliato
Studio Valdobbiadene Srl
Via Garibaldi, 36 31049 Valdobbiadene (TV)

2026 Tecnocasa Franchising S.p.A. - P. IVA 08365160152 - Via Monte Bianco 60/A 20089 Rozzano (MI). Ogni agenzia ha un proprio titolare ed è autonoma. Privacy policy | Policy utilizzo | Cookie policy