Villa singola in vendita

Pederobba, Via Montello - Covolo
€ 295.000
5 locali 5 locali
246 Mq 246 Mq
1 bagno 1 bagno

Villa singola in vendita

Pederobba, Via Montello - Covolo

Descrizione annuncio

NOSTRA ESCLUSIVA DI VENDITA////

COVOLO DI PEDEROBBA. Situata in zona strategica e comoda ai servizi cittadini, proponiamo la vendita di una villa singola parzialmente ristrutturata nel 2020 dalle generose metrature.

L'immobile è cosi composto:

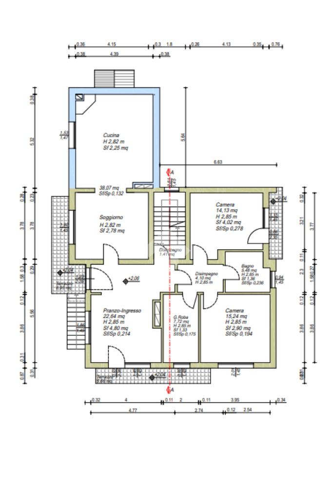
Salendo le scale esterne che ci conducono al piano rialzato, varcata la soglia d'ingresso veniamo accolti da una luminosa zona giorno-cucina separata dalla sala da pranzo. Percorrendo il disimpegno che ci conduce alla zona notte troviamo due camere da letto di circa 15mq ciascuna ,una terza stanza/studio ed un bagno con vasca.

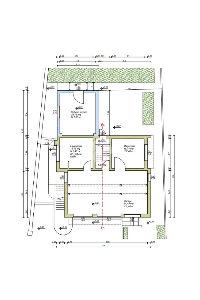
Al piano seminterrato la villa gode di un ampio garage doppio di circa 55mq, una lavanderia ed un magazzino.

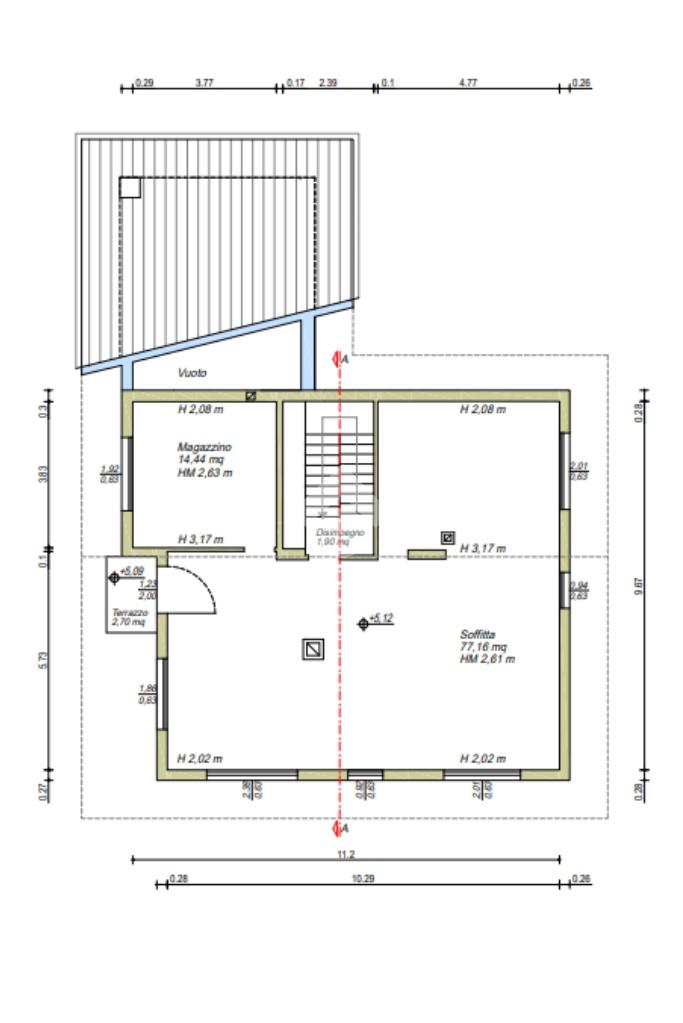
Completa inoltre la proprieta una luminosa soffitta praticabile e uno scoperto privato che bacia i quattro lati della casa.

La ristrutturazione del 2020 comprende il rifacimento completo del tetto, la sostituzione dei serramenti, il rifacimento dell'impianto elettrico e i pavimenti di alcune zone del piano rialzato.

Di recente restauro anche il cancello che comprende l'accesso pedonale e carrabile.

Per ulteriori informazioni contattateci in Agenzia e seguiteci anche su facebook, cliccando 'mi piace' sulla pagina Gruppo Tecnocasa Valdobbiadene.
Scaricate gratuitamente l'App. Tecnocasa sul vostro smartphone e sarete sempre aggiornati sulle nostre proposte di vendita.

Mostra tutto

Nelle vicinanze

Trasporto pubblico Trasporto pubblico
Cornuda
Cornuda
2,3 Km
Trasporto pubblico
1,7 Km
La Marca
La Marca
2,5 Km
Ricariche auto elettriche Ricariche auto elettriche
BeCharge Vidor Capitello
2,5 Km
Scuole Scuole
Scuole
1,7 Km
Scuola primaria
1,8 Km
Ic Pederobba
1,8 Km
Scuola Primaria Antonio Canova
2,5 Km
Scuola Secondaria di I° grado Giuseppe Angelo Roncalli
2,5 Km
Farmacia Farmacia
Farmacia Gonella
2,1 Km
Farmacia Deserti
2,2 Km
Farmacia Dalla Favera
2,7 Km
Supermercati Supermercati
Coop
2,1 Km
Pianeta Verde Bio - Naturasi
2,4 Km
Alìper
2,5 Km
Negozi Negozi
Negozi
2,5 Km
Dolce Forno
2,6 Km
Bar Bar
Bar
2,1 Km
Bar Alla Stazione
2,3 Km
Caffè Gelateria Brotto
2,5 Km
Blanc et Rouge
2,7 Km
Dam Bar
2,7 Km
Ristoranti Ristoranti
La Ghiacciaia
300 m
Ristorante Villa Bellati
310 m
Pizzeria Azzurra
850 m
Da Ugo
1,3 Km
Casa Caldart
1,8 Km
Mostra tutto

Caratteristiche

Rif.:
61139959
Piano:
2 di 2 (Piano su più livelli)
Box:
2
Posti auto:
2
Balconi:
1
Terrazzi:
4
Mostra tutto
Prezzo Prezzo
€ 295.000
Rata mutuo Rata mutuo
€ 1.392 / mese
Spese annue Spese annue
€ 0
Proponi il tuo prezzoProponi il tuo prezzo

Classe Energetica

E
E
E
E
E
E
E
E
E
EP globale non rinnovabile:
254.08 kW h/m² anno
EP globale rinnovabile:
254.08 kW h/m² anno
EP invernale del fabbricato:
EP estiva del fabbricato:
Anno di costruzione:
1970
Riscaldamento:
Autonomo
Tipo impianto:
A radiatori
Tipo alimentazione:
Metano

Ti interessa visionare l'immobile?

Fissa un appuntamento  Fissa un appuntamento

Richiedi informazioni

Clicca su Leggi per aprire l'informativa
* Questi campi sono obbligatori

Calcola il tuo mutuo

Semplice e senza impegno
Anticipo

( % )
Mutuo

( % )

pochi semplici passi

inserisci i tuoi dati
Questionario completato
Grazie per aver richiesto un appuntamento senza impegno con un nostro Consulente del Credito e Assicurativo.

Hai inserito correttamente tutti i dati necessari e a breve riceverai una e-mail con un link da convalidare per inviare i tuoi dati.
Affiliato
Studio Valdobbiadene Srl
Via Garibaldi, 36 31049 Valdobbiadene (TV)

Il nostro staff


  • Edoardo Maria Cunzo
    Responsabile

  • Vittorio Braguta
    Collaboratore

  • Andreanicole Bizzotto
    Affiliata

  • Nicola Pavan
    Affiliato

  • Maddalena Recchia
    Collaboratrice

  • Blerina Seli
    Coordinatrice

  • Sebastiano Sartore
    Collaboratore

  • Veronica Zanandrea
    Collaboratrice
Via Garibaldi, 36 31049 Valdobbiadene (TV)
Zona: Valdobbiadene-Vidor-Pederobba
Mostra su mappa
Affiliato
Studio Valdobbiadene Srl
Via Garibaldi, 36 31049 Valdobbiadene (TV)

2025 Tecnocasa Franchising S.p.A. - P. IVA 08365160152 - Via Monte Bianco 60/A 20089 Rozzano (MI). Ogni agenzia ha un proprio titolare ed è autonoma. Privacy policy | Policy utilizzo | Cookie policy