Casa semindipendente in vendita

Valdobbiadene, Via giuseppe garibaldi - San Vito
€ 100.000
4 locali 4 locali
140 Mq 140 Mq
2 bagni 2 bagni

Casa semindipendente in vendita

Valdobbiadene, Via giuseppe garibaldi - San Vito

Descrizione annuncio

NOSTRA ESCLUSIVA DI VENDITA////

VALDOBBIADENE. Località San Vito.

Proponiamo in vendita una casa semindipendente inserita in un caratteristico contesto di corte, con scoperto privato e spazi accoglienti disposti su tre livelli.

La posizione è tranquilla e comoda ai principali servizi, ideale per chi desidera vivere in un ambiente sereno senza rinunciare alla praticità.

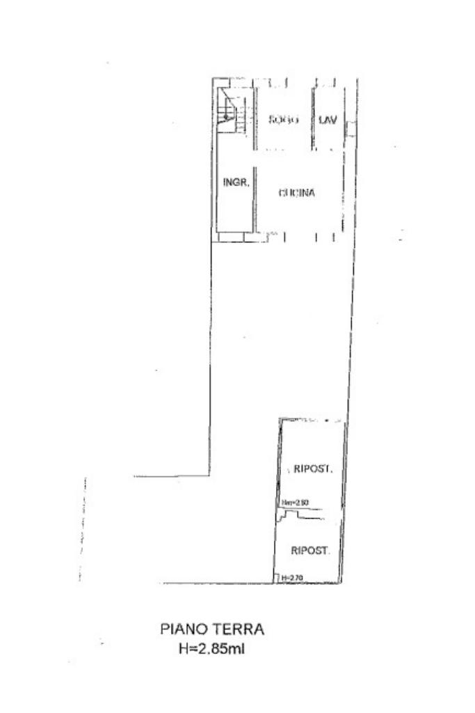
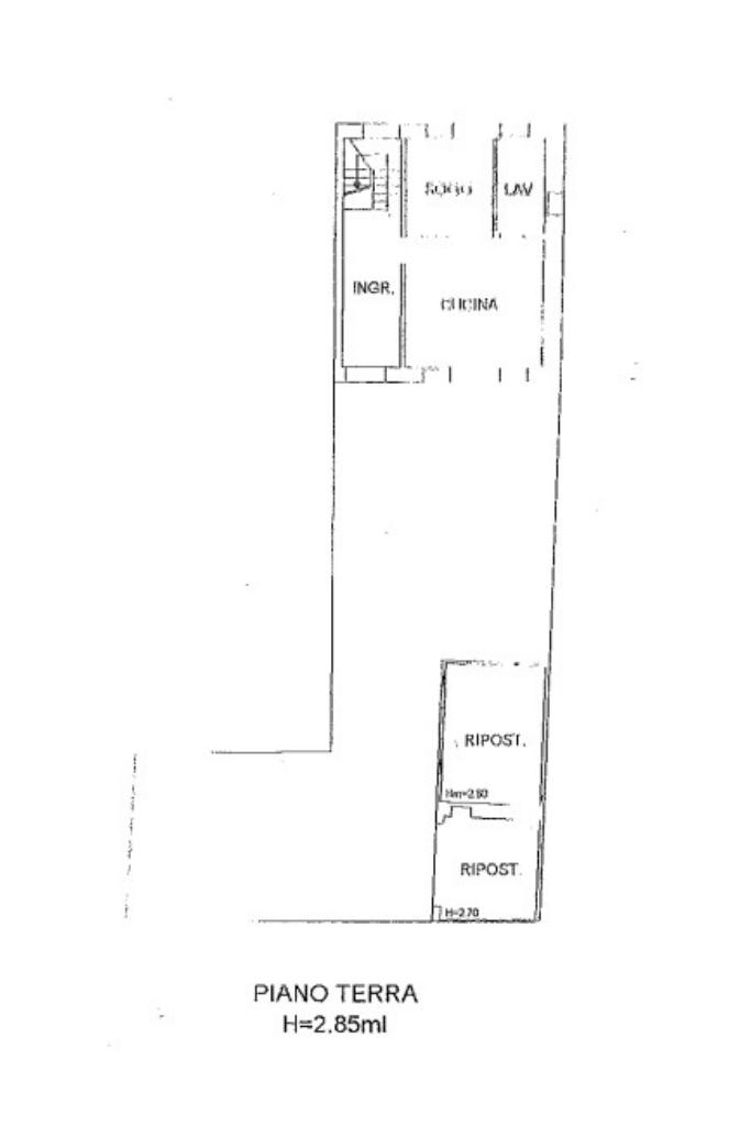
Al piano terra ci accoglie un ingresso luminoso che conduce alla zona giorno open space, dove trovano spazio il soggiorno e la cucina in un ambiente accogliente e funzionale, un bagno con lavanderia.

Il primo piano ospita la zona notte, composta da due camere matrimoniali e un bagno con doccia, mentre al secondo piano si trova una soffitta.

Completa la proprietà uno scoperto privato e due ripostigli pertinenziali di cui uno dotato di camino, perfetto per essere adibito a taverna o locale conviviale, e l'altro utilizzabile come garage, deposito o piccolo laboratorio.

La casa si presenta in buone condizioni e abitabile da subito, pronta per essere vissuta senza necessità di interventi immediati. Una soluzione ideale per chi cerca una casa semindipendente in un contesto tranquillo e tipico delle colline del Valdobbiadene.

L'immobile gode di doppio accesso all'abitazione.

Per ulteriori informazioni contattateci in Agenzia e seguiteci anche su facebook, cliccando 'mi piace' sulla pagina Gruppo Tecnocasa Valdobbiadene.
Scaricate gratuitamente l'App. Tecnocasa sul vostro smartphone e sarete sempre aggiornati sulle nostre proposte di vendita.

Mostra tutto

Nelle vicinanze

Trasporto pubblico Trasporto pubblico
Pederobba Cavaso Possagno
Pederobba Cavaso Possagno
2,3 Km
Alano Fener Valdobbiadene
Alano Fener Valdobbiadene
2,7 Km
Trasporto pubblico
1,5 Km
Scuole Scuole
Scuole
680 m
Scuola Elementare San Venanzio Fortunato
1,6 Km
I.S.I.S.S. Giuseppe Verdi
1,6 Km
Elementari
1,6 Km
Scuola Media Statale Efrem Reatto
1,9 Km
Farmacia Farmacia
Farmacia
1,4 Km
Erboristeria
1,5 Km
Farmacia Gobbato
2,7 Km
Ospedali Ospedali
Ospedali
770 m
Supermercati Supermercati
Crai
1,4 Km
Eurodespar
2,7 Km
Negozi Negozi
Vanzin
390 m
Goldenpoint
1,3 Km
Panificio al Campanile
1,6 Km
Spaccio Calzedonia Intimissimi
2,7 Km
Negozi
2,9 Km
Bar Bar
Bar
660 m
Caffè Baratto
1,3 Km
Fiori
1,4 Km
La Rizza
1,5 Km
Ostaria Cavò
1,5 Km
Ristoranti Ristoranti
Osteria Pellegrina
1,3 Km
Pizzeria Darling
1,4 Km
Secco Pizza
1,5 Km
Ombralonga
1,8 Km
Ristoranti
2,0 Km
Mostra tutto

Caratteristiche

Rif.:
61132541
Piano:
3 di 3 (Piano su più livelli)
Box:
1
Posti auto:
2
Camere da letto:
2
Arredamento:
Completo
Mostra tutto
Prezzo Prezzo
€ 100.000
Rata mutuo Rata mutuo
€ 459 / mese
Spese annue Spese annue
€ 0
Proponi il tuo prezzoProponi il tuo prezzo
Immobile valutato con T·Valuta

Classe Energetica

G
G
G
G
G
G
G
G
G
EP invernale del fabbricato:
EP estiva del fabbricato:
Anno di costruzione:
1940
Riscaldamento:
Autonomo
Tipo impianto:
A radiatori
Tipo alimentazione:
Metano

Ti interessa visionare l'immobile?

Fissa un appuntamento  Fissa un appuntamento

Richiedi informazioni

* Questi campi sono obbligatori

Calcola il tuo mutuo

Semplice e senza impegno
Anticipo

( % )
Mutuo

( % )

pochi semplici passi

inserisci i tuoi dati
Questionario completato
Grazie per aver richiesto un appuntamento senza impegno con un nostro Consulente del Credito e Assicurativo.

Hai inserito correttamente tutti i dati necessari e a breve riceverai una e-mail con un link da convalidare per inviare i tuoi dati.
Affiliato
Studio Valdobbiadene Srl
Via Garibaldi, 36 31049 Valdobbiadene (TV)

Il nostro staff


  • Edoardo Maria Cunzo
    Responsabile

  • Andreanicole Bizzotto
    Affiliata

  • Nicola Pavan
    Affiliato

  • Blerina Seli
    Coordinatrice

  • Veronica Zanandrea
    Collaboratrice
Via Garibaldi, 36 31049 Valdobbiadene (TV)
Zona: Valdobbiadene-Vidor-Pederobba
Mostra su mappa
Affiliato
Studio Valdobbiadene Srl
Via Garibaldi, 36 31049 Valdobbiadene (TV)

2025 Tecnocasa Franchising S.p.A. - P. IVA 08365160152 - Via Monte Bianco 60/A 20089 Rozzano (MI). Ogni agenzia ha un proprio titolare ed è autonoma. Privacy policy | Policy utilizzo | Cookie policy