Casa semindipendente in vendita

Valdobbiadene, Via cal del col - Guia
€ 50.000
4 locali 4 locali
141 Mq 141 Mq
1 bagno 1 bagno

Casa semindipendente in vendita

Valdobbiadene, Via cal del col - Guia

Descrizione annuncio

NOSTRA ESCLUSIVA DI VENDITA//

GUIA DI VALDOBBIADENE

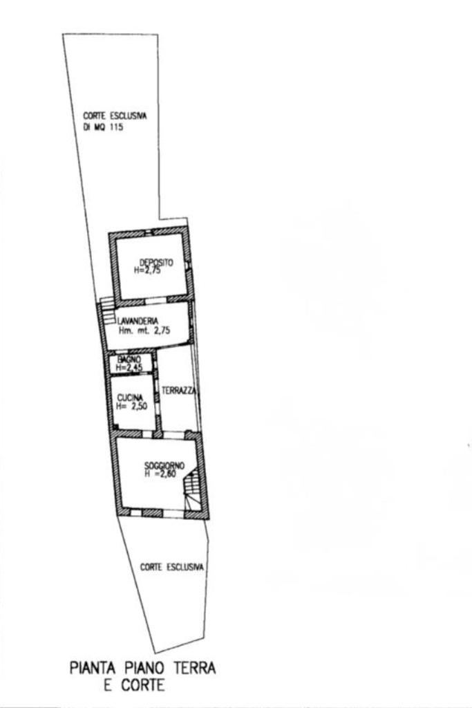
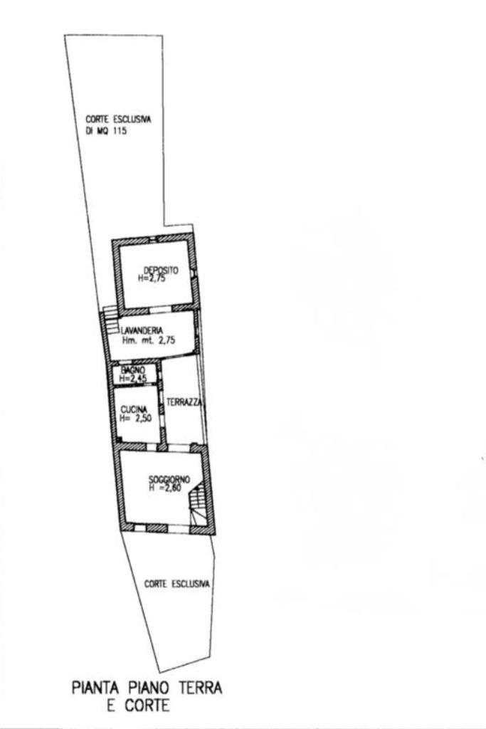
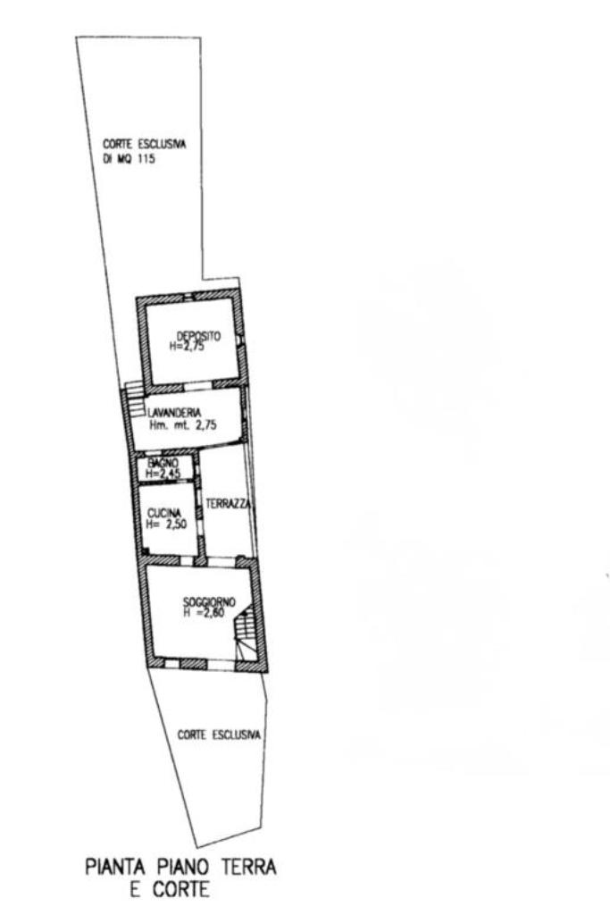
Nel cuore delle colline del Prosecco Conegliano Valdobbiadene, proponiamo in vendita una caratteristica casa semi indipendente, ideale per chi desidera vivere immerso nella tranquillità e nel fascino del paesaggio collinare. La proprietà è arricchita da uno scoperto privato di 185 mq, impreziosito da una suggestiva veranda che regala una splendida vista aperta sulle colline circostanti. L’immobile si sviluppa su tre livelli. Al piano terra si viene accolti da un luminoso salotto riscaldato da una tradizionale stube, una cucina anch’essa dotata di stube che contribuisce a creare un’atmosfera calda e conviviale, una lavanderia funzionale, un bagno con doccia e un comodo deposito. Salendo al primo piano troviamo una spaziosa camera matrimoniale, mentre al secondo piano è presente una soffitta versatile, che può essere facilmente adibita a ulteriore camera o spazio multifunzionale in base alle esigenze. Una soluzione dal carattere autentico, perfetta sia come abitazione principale che come casa di charme per il tempo libero.

Mostra tutto

Nelle vicinanze

Trasporto pubblico Trasporto pubblico
Trasporto pubblico
2,8 Km
Ricariche auto elettriche Ricariche auto elettriche
Pizzeria Belvedere
1,7 Km
Scuole Scuole
Scuole
400 m
Ic Farra di Soligo Elementari e Medie
2,8 Km
Ristoranti Ristoranti
Belvedere
1,7 Km
Riva dei Tör
1,7 Km
Agriturismo Pian de Farnè
2,2 Km
Osteria Al Contadin
2,3 Km
Pizzeria Curva del Cristo
2,4 Km
Mostra tutto

Caratteristiche

Rif.:
61199319
Piano:
Su più livelli di 3
Totale piani:
3
Posti auto:
1
Balconi:
2
Terrazzi:
1
Mostra tutto
Prezzo Prezzo
€ 50.000
Rata mutuo Rata mutuo
€ 236 / mese
Proponi il tuo prezzoProponi il tuo prezzo

Classe Energetica

G
G
G
G
G
G
G
G
G
EP invernale del fabbricato:
EP estiva del fabbricato:
Anno di costruzione:
1960
Riscaldamento:
Autonomo
Tipo impianto:
A stufa
Tipo alimentazione:
Gasolio

Ti interessa visionare l'immobile?

Fissa un appuntamento  Fissa un appuntamento

Richiedi informazioni

Clicca su Leggi per aprire l'informativa
* Questi campi sono obbligatori

Calcola il tuo mutuo

Semplice e senza impegno
Anticipo

( % )
Mutuo

( % )

pochi semplici passi

inserisci i tuoi dati
Questionario completato
Grazie per aver richiesto un appuntamento senza impegno con un nostro Consulente del Credito e Assicurativo.

Hai inserito correttamente tutti i dati necessari e a breve riceverai una e-mail con un link da convalidare per inviare i tuoi dati.
Affiliato
Studio Valdobbiadene Srl
Via Garibaldi, 36 31049 Valdobbiadene (TV)

Il nostro staff


  • Edoardo Maria Cunzo
    Responsabile

  • Andreanicole Bizzotto
    Affiliata

  • Nicola Pavan
    Affiliato

  • Maddalena Recchia
    Collaboratrice

  • Blerina Seli
    Coordinatrice

  • Veronica Zanandrea
    Responsabile
Via Garibaldi, 36 31049 Valdobbiadene (TV)
Zona: Valdobbiadene-Vidor-Pederobba
Mostra su mappa
Affiliato
Studio Valdobbiadene Srl
Via Garibaldi, 36 31049 Valdobbiadene (TV)

2026 Tecnocasa Franchising S.p.A. - P. IVA 08365160152 - Via Monte Bianco 60/A 20089 Rozzano (MI). Ogni agenzia ha un proprio titolare ed è autonoma. Privacy policy | Policy utilizzo | Cookie policy